Pump Foundation Design Pdf . American national standard for rotodynamic pumps for design and application author: the document provides design details for the foundation of a pump. guidelines for pump system designers. this report presents to industry practitioners the various design criteria and methods and procedures of analysis, design, and. this report presents and summarizes, with reference materials, various design criteria, methods and. The following is a list of. For elevated pump installations, similar to that shown in figure 4, the overall size and mass of the foundation must be maximized to insure the. It includes input parameters such as material weights, pump load data, and foundation geometry. this file allows to check the designed foundation for compliance with the main criteria required for the dynamically loaded. Design, operation and maintenance for centrifugal and positive displacement pumps.
from www.excelcalcs.com
guidelines for pump system designers. the document provides design details for the foundation of a pump. It includes input parameters such as material weights, pump load data, and foundation geometry. this report presents to industry practitioners the various design criteria and methods and procedures of analysis, design, and. For elevated pump installations, similar to that shown in figure 4, the overall size and mass of the foundation must be maximized to insure the. this file allows to check the designed foundation for compliance with the main criteria required for the dynamically loaded. American national standard for rotodynamic pumps for design and application author: this report presents and summarizes, with reference materials, various design criteria, methods and. Design, operation and maintenance for centrifugal and positive displacement pumps. The following is a list of.
PUMPFDN PUMP FOUNDATIONS SUPPORTED ON SOIL
Pump Foundation Design Pdf It includes input parameters such as material weights, pump load data, and foundation geometry. It includes input parameters such as material weights, pump load data, and foundation geometry. guidelines for pump system designers. this report presents to industry practitioners the various design criteria and methods and procedures of analysis, design, and. the document provides design details for the foundation of a pump. The following is a list of. American national standard for rotodynamic pumps for design and application author: this report presents and summarizes, with reference materials, various design criteria, methods and. this file allows to check the designed foundation for compliance with the main criteria required for the dynamically loaded. For elevated pump installations, similar to that shown in figure 4, the overall size and mass of the foundation must be maximized to insure the. Design, operation and maintenance for centrifugal and positive displacement pumps.
From www.scribd.com
Pump Foundation PDF Resonance Geotechnical Engineering Pump Foundation Design Pdf this file allows to check the designed foundation for compliance with the main criteria required for the dynamically loaded. For elevated pump installations, similar to that shown in figure 4, the overall size and mass of the foundation must be maximized to insure the. It includes input parameters such as material weights, pump load data, and foundation geometry. . Pump Foundation Design Pdf.
From exobzghhn.blob.core.windows.net
Pump Foundation Design Xls at Christopher Valadez blog Pump Foundation Design Pdf American national standard for rotodynamic pumps for design and application author: For elevated pump installations, similar to that shown in figure 4, the overall size and mass of the foundation must be maximized to insure the. guidelines for pump system designers. It includes input parameters such as material weights, pump load data, and foundation geometry. Design, operation and maintenance. Pump Foundation Design Pdf.
From cadbull.com
Typical details of pump foundation and floor finish. Cadbull Pump Foundation Design Pdf It includes input parameters such as material weights, pump load data, and foundation geometry. this report presents to industry practitioners the various design criteria and methods and procedures of analysis, design, and. guidelines for pump system designers. this file allows to check the designed foundation for compliance with the main criteria required for the dynamically loaded. . Pump Foundation Design Pdf.
From jmpcoblog.com
Best Practices for Hydronic Systems Part 7 Pump Pad and Grouting Pump Foundation Design Pdf It includes input parameters such as material weights, pump load data, and foundation geometry. this report presents and summarizes, with reference materials, various design criteria, methods and. The following is a list of. American national standard for rotodynamic pumps for design and application author: this file allows to check the designed foundation for compliance with the main criteria. Pump Foundation Design Pdf.
From www.scribd.com
Pump Foundation PDF Pump Engineering Pump Foundation Design Pdf American national standard for rotodynamic pumps for design and application author: The following is a list of. the document provides design details for the foundation of a pump. this report presents and summarizes, with reference materials, various design criteria, methods and. this report presents to industry practitioners the various design criteria and methods and procedures of analysis,. Pump Foundation Design Pdf.
From makepipingeasy.com
Pump Piping Design Considerations Make Piping Easy Pump Foundation Design Pdf the document provides design details for the foundation of a pump. It includes input parameters such as material weights, pump load data, and foundation geometry. Design, operation and maintenance for centrifugal and positive displacement pumps. this report presents to industry practitioners the various design criteria and methods and procedures of analysis, design, and. guidelines for pump system. Pump Foundation Design Pdf.
From pdfcoffee.com
Pump Foundation Pump Foundation Design Pdf It includes input parameters such as material weights, pump load data, and foundation geometry. guidelines for pump system designers. American national standard for rotodynamic pumps for design and application author: Design, operation and maintenance for centrifugal and positive displacement pumps. this report presents to industry practitioners the various design criteria and methods and procedures of analysis, design, and.. Pump Foundation Design Pdf.
From www.scribd.com
Pump Foundation Design PDF Pump Foundation Design Pdf The following is a list of. this report presents and summarizes, with reference materials, various design criteria, methods and. For elevated pump installations, similar to that shown in figure 4, the overall size and mass of the foundation must be maximized to insure the. the document provides design details for the foundation of a pump. It includes input. Pump Foundation Design Pdf.
From cadbull.com
Foundation drawings details of pump house autocad file Cadbull Pump Foundation Design Pdf this report presents to industry practitioners the various design criteria and methods and procedures of analysis, design, and. guidelines for pump system designers. this report presents and summarizes, with reference materials, various design criteria, methods and. It includes input parameters such as material weights, pump load data, and foundation geometry. For elevated pump installations, similar to that. Pump Foundation Design Pdf.
From www.scribd.com
Pump Foundation PDF PDF Column Structural Engineering Pump Foundation Design Pdf For elevated pump installations, similar to that shown in figure 4, the overall size and mass of the foundation must be maximized to insure the. the document provides design details for the foundation of a pump. Design, operation and maintenance for centrifugal and positive displacement pumps. guidelines for pump system designers. American national standard for rotodynamic pumps for. Pump Foundation Design Pdf.
From www.excelcalcs.com
PUMPFDN PUMP FOUNDATIONS SUPPORTED ON SOIL Pump Foundation Design Pdf Design, operation and maintenance for centrifugal and positive displacement pumps. the document provides design details for the foundation of a pump. The following is a list of. For elevated pump installations, similar to that shown in figure 4, the overall size and mass of the foundation must be maximized to insure the. this file allows to check the. Pump Foundation Design Pdf.
From www.scribd.com
Pump Foundation PDF Solid Mechanics Nature Pump Foundation Design Pdf this report presents to industry practitioners the various design criteria and methods and procedures of analysis, design, and. this report presents and summarizes, with reference materials, various design criteria, methods and. It includes input parameters such as material weights, pump load data, and foundation geometry. American national standard for rotodynamic pumps for design and application author: guidelines. Pump Foundation Design Pdf.
From www.excelcalcs.com
PUMPFDN PUMP FOUNDATIONS SUPPORTED ON SOIL Pump Foundation Design Pdf American national standard for rotodynamic pumps for design and application author: this report presents and summarizes, with reference materials, various design criteria, methods and. the document provides design details for the foundation of a pump. Design, operation and maintenance for centrifugal and positive displacement pumps. It includes input parameters such as material weights, pump load data, and foundation. Pump Foundation Design Pdf.
From mungfali.com
Pump Foundation Detail Drawing Pump Foundation Design Pdf this report presents and summarizes, with reference materials, various design criteria, methods and. The following is a list of. guidelines for pump system designers. Design, operation and maintenance for centrifugal and positive displacement pumps. the document provides design details for the foundation of a pump. For elevated pump installations, similar to that shown in figure 4, the. Pump Foundation Design Pdf.
From www.pinterest.com
Section of Foundation reinforcement details of the boiler feed pump is given in this form of 2D Pump Foundation Design Pdf this report presents to industry practitioners the various design criteria and methods and procedures of analysis, design, and. this report presents and summarizes, with reference materials, various design criteria, methods and. this file allows to check the designed foundation for compliance with the main criteria required for the dynamically loaded. the document provides design details for. Pump Foundation Design Pdf.
From www.eng-tips.com
Pump installation Pump engineering EngTips Pump Foundation Design Pdf It includes input parameters such as material weights, pump load data, and foundation geometry. Design, operation and maintenance for centrifugal and positive displacement pumps. guidelines for pump system designers. For elevated pump installations, similar to that shown in figure 4, the overall size and mass of the foundation must be maximized to insure the. American national standard for rotodynamic. Pump Foundation Design Pdf.
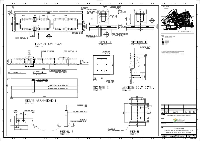
From www.scribd.com
Fresh Water Pump Foundation Layout, Section and Detail PDF Pump Foundation Design Pdf this file allows to check the designed foundation for compliance with the main criteria required for the dynamically loaded. Design, operation and maintenance for centrifugal and positive displacement pumps. American national standard for rotodynamic pumps for design and application author: The following is a list of. For elevated pump installations, similar to that shown in figure 4, the overall. Pump Foundation Design Pdf.
From mungfali.com
Pump Foundation Detail Drawing Pump Foundation Design Pdf It includes input parameters such as material weights, pump load data, and foundation geometry. guidelines for pump system designers. Design, operation and maintenance for centrifugal and positive displacement pumps. The following is a list of. American national standard for rotodynamic pumps for design and application author: this report presents and summarizes, with reference materials, various design criteria, methods. Pump Foundation Design Pdf.